The Apartment is located on Grey St side.
Experience the allure of city living with this fantastic apartment, centrally located in South Brisbane with fantastic city river view. Due to a change in the owner's circumstances, this charming residence is now on the market and must be sold.
We invite city professionals, first-time homeowners, and discerning investors to seize this exceptional opportunity. All reasonable offers will be considered. Don't let this chance pass you by - schedule your inspection today.
Experience tranquility in the heart of Southbank at The Galleria Apartments, a residential complex perfectly situated within walking distance to all that South Bank has to offer. A mere 5-minute stroll across the new river bridge from The Star Casino takes you to the Brisbane CBD. Conveniently located at your doorstep are a train station, bus stop, and the City Cat. Directly across the road, you'll find the Emporium Hotel, Woolworths, and family doctors. The Mater Private Hospital and Children's Hospital are just about 100 meters away. And let's not forget the beautiful Southbank River Parkland right in front of the building. This location is ideal for retirees, investors, and owner-occupiers.
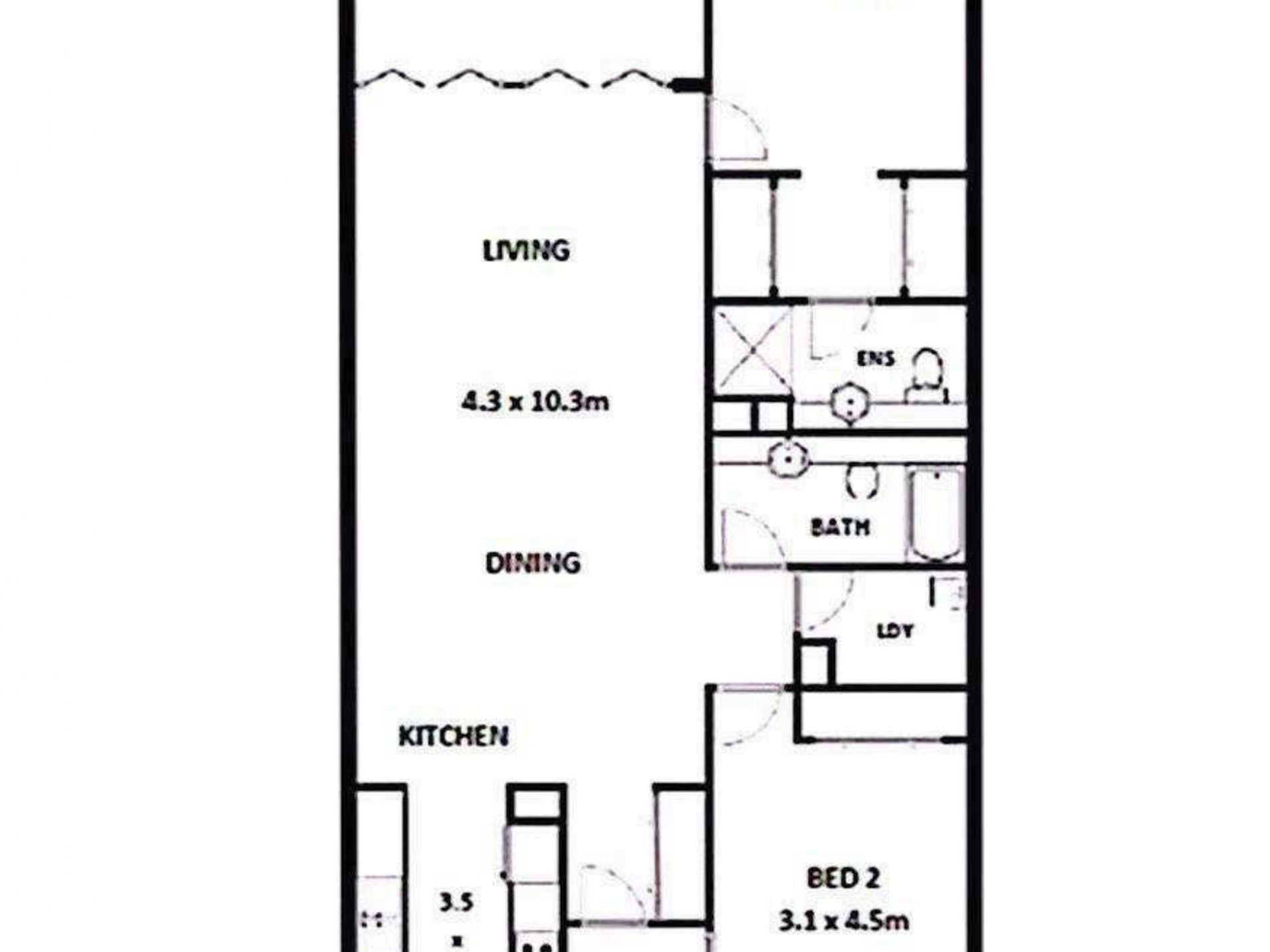
This spacious, private two-bedroom apartment on level 6 boasts an array of features, including:
• The apartment was fully renovated.
• Brilliant open plan living and dining area.
• Generously sized balcony, perfect for entertaining
• Kitchen equipped with nearly new gas cooktop, oven, and dishwasher
• Two spacious king-size bedrooms with built-in robes
• Separate built-in laundry with dryer
• Air conditioning throughout
• One secure car park with remote control access
• Secure complex with swipe access
• Levy aprx $1600/Quarter; Water aprx $300/ Quarter; BCC rate Aprx $409/ Quarter
In addition to these features, residents can enjoy a sauna, shower and toilet facilities, and an outdoor gym, all conveniently located on Level 2.
Grey Street offers a vibrant mix of cafes, bars, and restaurants. For a fine dining experience, head down to the waterfront and enjoy a five-star dinner with the stunning backdrop of the Brisbane River and City Skyline. South Bank is also home to a world-class movie theatre, weekend markets, a cultural centre, QPAC, GOMA, and a museum. Not to mention the 17.5 hectares of lush Parklands, complete with its own beach. South Bank truly offers a lifestyle like no other.
Low ongoing cost in peace of mind. The current rent is approximately $900/week.
Please contact agent Kevin for the inspection on 0406 685 666. Weekday inspection by appointment.
Disclaimer: All information provided is deemed reliable, but not guaranteed. Interested parties are encouraged to conduct their own inquiries to ensure satisfaction with this exceptional offering.
- Air Conditioning
- Balcony
- Built-in Wardrobes
- Dishwasher
- Gym
- Intercom












































